Skip to content
Menu
Close
Our Services
The People
Our Projects
Contact
Our Services
The People
Our Projects
Contact
Instagram
Facebook
ⓒ 2022
The Castleworks Design Collective.
Our Services
The People
Our Projects
Contact
Menu
Our Services
The People
Our Projects
Contact
Back to Our Projects
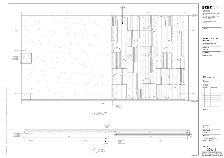
Wall Feature Detail
/
CAD Production
Year
2022
Location
Indonesia
Type
Hospitality
Millwork wall feature detail of ASTON Lobby Hotel
related project
Reception Desk Detail
2022, Indonesia
related project
Foyer Detail
2022, Indonesia